Deutschland - Baden-Württemberg: Königsbronn

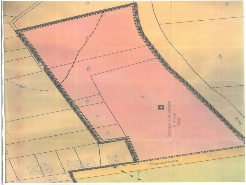
Das zentrumsnahe Grundstück in Königsbronn präsentiert sich als unbebautes Filetstück in absoluter TOP-Lage direkt am Brenzufer. Mit einer großzügigen Fläche von 7.450 m² bietet es hervorragende Entwicklungsmöglichkeiten für anspruchsvolle Neubauprojekte. Die unverbaubare Lage am Flussufer garantiert eine dauerhaft attraktive Wohnsituation mit hoher Lebensqualität. Das Grundstück eignet sich ideal für verschiedene Nutzungskonzepte im Wohnungsbau oder für Pflegeeinrichtungen. Die Gemeinde Königsbronn steht einer Bebauung positiv gegenüber und unterstützt die Entwicklung aktiv. Für die Realisierung wird in enger Abstimmung mit der Gemeinde ein neuer Bebauungsplan erstellt, der die optimale Ausnutzung des Potenzials ermöglicht. Die sofortige Verfügbarkeit macht das Objekt besonders interessant für Investoren und Projektentwickler, die zeitnah mit der Planung beginnen möchten.

Lage

Königsbronn ist eine attraktive Gemeinde im Landkreis Heidenheim in Baden-Württemberg mit rund 7.000 Einwohnern am Fuße der Schwäbischen Alb. Das Grundstück befindet sich in zentrumsnaher Lage und bietet dennoch eine sehr ruhige Wohnsituation direkt am Brenzufer. Die Brenzstraße liegt in unmittelbarer Nähe zum Ortskern mit allen Einrichtungen des täglichen Bedarfs. Königsbronn verfügt über eine gute Infrastruktur mit Kindergärten, Grundschule und weiterführenden Schulen in der Region. Einkaufsmöglichkeiten für den täglichen Bedarf sind fußläufig erreichbar. Die verkehrsgünstige Lage ermöglicht eine schnelle Anbindung an die B19 und die nahegelegene A7, wodurch größere Städte wie Heidenheim (ca. 8 km) und Aalen (ca. 20 km) gut erreichbar sind. Die Gemeinde bietet einen hohen Freizeitwert durch die naturnahe Lage am Brenzursprung und die Nähe zu Wanderwegen der Schwäbischen Alb. Medizinische Versorgung ist durch Arztpraxen vor Ort sowie Kliniken in Heidenheim gewährleistet. Die Kombination aus ländlichem Charakter, guter Infrastruktur und Nähe zu wirtschaftsstarken Zentren macht Königsbronn zu einem attraktiven Wohn- und Investitionsstandort.

Grundstücksnummer:
20011
Entwicklungsstatus:

In Entwicklung, Teilweise erschlossen

Bebaubar nach
Nachbarbebauung (§34 BauGB)
Empfohlene Nutzungsart:
Mehrfamilienhäuser
Senioren- und Pflegeimmobilien
Kaufpreis:
1.490.000
Grundstücksgröße:
7.450
m2
Provision:
4.76
%
Provisionsfrei
Die Provision wird mit Abschluss des notariellen Kaufvertrags fällig und ist vom Käufer zu tragen.
Bundesland:
Baden-Württemberg
Stadt:
Königsbronn

Grundstücksanfrage

Die mit * gekennzeichneten Felder sind Pflichtfelder

Brenzstraße, Königsbronn

Auf dem traditionsreichen Gelnde des ehemaligen Flughafens Leipzig-Mockau entsteht ein einzigartiges Projekt, das Historie und Zukunft in idealer Weise verbindet. Bereits 1913 erffnet, diente der Flughafen bis 1991 als wichtiger Verkehrsknotenpunkt  seine Geschichte prgt bis heute die besondere Atmosphre des Areals.

Durch eine geplante Umwidmung wird der historische Charme dieses Standorts bewahrt und behutsam in das neue Nutzungskonzept integriert. Das grozgige Grundstck umfasst beeindruckende 28.531 m und ist vollstndig erschlossen  inklusive aller relevanten Anschlsse wie Strom, Abwasser, Gas, Telefon und Trinkwasser.

Smtliche wesentlichen Gutachten, darunter Altlasten- und Baugrunduntersuchungen, liegen bereits vor und knnen auf Wunsch eingesehen werden. Zwei denkmalgeschtzte Bestandsgebude wurden bereits entkernt, fachgerecht gesichert und stehen bereit fr eine umfassende Sanierung  ideal fr visionre Konzepte mit Respekt vor der Vergangenheit.

Aktuell laufen intensive Abstimmungen mit der Stadt Leipzigber die zuknftige Bebaubarkeit und mgliche Erweiterungen der Nutzflche gem Bebauungsplan. Diese auergewhnliche Liegenschaft bietet damit nicht nur Potenzial fr architektonisch anspruchsvolle Entwicklungen, sondern auch Raum fr kreative, zukunftsweisende Projekte in einem geschichtstrchtigen Umfeld.

Projektnummer:
20011
Entwicklungsstatus / Baurecht:

Das geplante Gebude mit einer Bruttogrundflche von 32.000/m soll bis 2027 fertiggestellt werden und verfgt bereits ber eine gltige Baugenehmigung. Es entstehen insgesamt 270 Zimmer sowie 109 Stellpltze. Ein langfristiger Pachtvertrag ber 20 Jahre sichert die Nutzung des Objekts nachhaltig ab.

sssBebaubar nach
Nachbarbebauung (§34 BauGB)
Empfohlene Nutzungsart:
Hotelbetrieb
Kaufpreis:
1.490.000
Grundstücksgröße:
7.450
m2
Provision:
4
%
Provisionsfrei
Die Provision wird mit Abschluss des notariellen Kaufvertrags fällig und ist vom Käufer zu tragen.
Bundesland:
Baden-Württemberg
Stadt:
Königsbronn

Lage

No information available